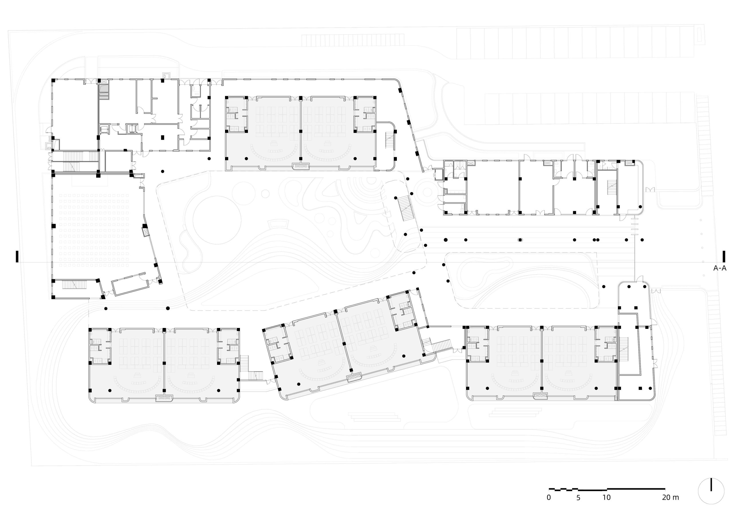
The project is located west of Yuanchuang Road and south of Jinjie Road. The western and northern sides of the site are adjacent to a high-rise residential area that is being developed synchronously, and the southern side is adjacent to a soon-to-be-developed commercial plot. The site is elongated in shape. In addition to the mandatory requirement of a fire access road, the designer concentrated the main entrance of the kindergarten, vehicle access, and fire exits on the eastern side of the site to make efficient use of the land.
As the “Eastern Gateway of Jiangsu and the Land Bridge between Suzhou and Shanghai,” Huaqiao not only has outstanding economic strength but also attaches great importance to public education resource buildings by relevant government departments. In addition to the local population, Huaqiao also attracts a large number of Shanghai residents and foreign employees. Therefore, the architectural style is not limited to traditional Suzhou style but tries to present Huaqiao’s openness and inclusiveness with a more modern approach that also inherits traditional spatial layouts. The “Clouds” Kindergarten is an exploration of kindergarten design based on this background. The building uses a series of “cloud” shapes to block unfavorable external interference, and the enclosed courtyard creates an outdoor activity space exclusively for children, allowing them to play carefree. The outdoor platform connecting the “clouds” also creates more outdoor activity space for children. The cluster of “clouds” faces north to south, with the south being lower and the north being higher, and the east being lower and the west being higher. While maximizing the introduction of natural light, pedestrians can roughly discern the overall effect of the building at the main entrance.
The landscape design of Yuanchuang Road Kindergarten is also themed around the sky. The main entrance courtyard features a half-moon shape, serving as the entrance and flow guide for the entire project. A quarter-circle “sun” is designed in the central courtyard, with the sun as the center, radiating out sand pits and slides. On the south side of the building, there is a “rainbow” running track and a 30-meter rubber track, interspersed with teacher leisure spaces. The second floor is equipped with a large number of open-air balcony spaces, combining the excavation to extend the trees from the first floor to the second-floor space. The design incorporates the four major sky elements of “clouds,” “rainbows,” “sun,” and “moon” into the Yuanchuang Road Kindergarten, creating a “sky city” exclusively for children.
As the most important space in the kindergarten, the classroom activity units are arranged on the south side of the southern and northern building blocks to ensure sufficient natural light. The logistics and supply rooms are mainly arranged in the northwest corner with a dedicated logistics entrance. Administrative offices, classroom offices, and the cafeteria are located above the logistics and supply rooms. Special classrooms such as the multifunction hall, reading room, and music room are located on the west side. Several vertical fire escape stairs and a stylized staircase are scattered at the corners of the building blocks.
Project Name: Yuanchuang Road Kindergarten
Building Type: Education
Site Area: 8,976 square meters
Building Area: 10,000 square meters
Project Partners: Wang Ruo, Tang Haiyin
Lead Architect: Wang Ruo
Design Team: Li Chuanzhang, Liao Zhexuan
Construction Document: Suzhou Zhongxing Huahan Architectural Design Co., Ltd.
Owner: Kunshan Yinqiao Holdings Group Co., Ltd.
Project Address: Huaqiao Economic Development Zone, Kunshan City, Suzhou, China
Design Period: July 2021 – January 2023
Project Status: Under Construction




























评论被关闭。